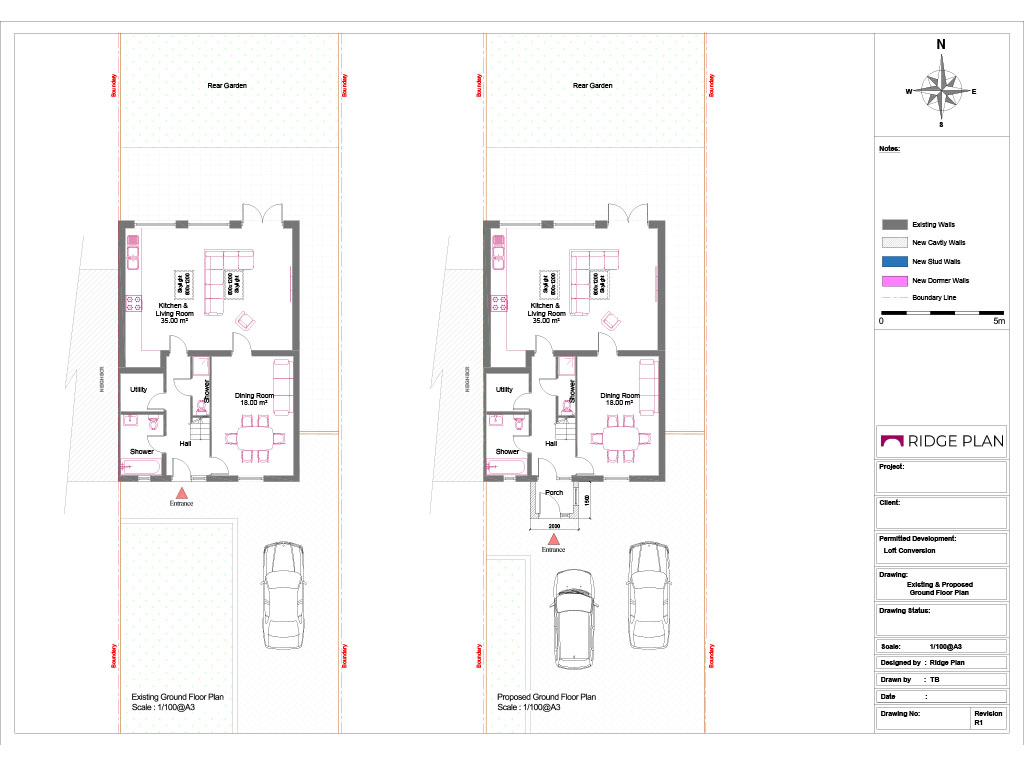
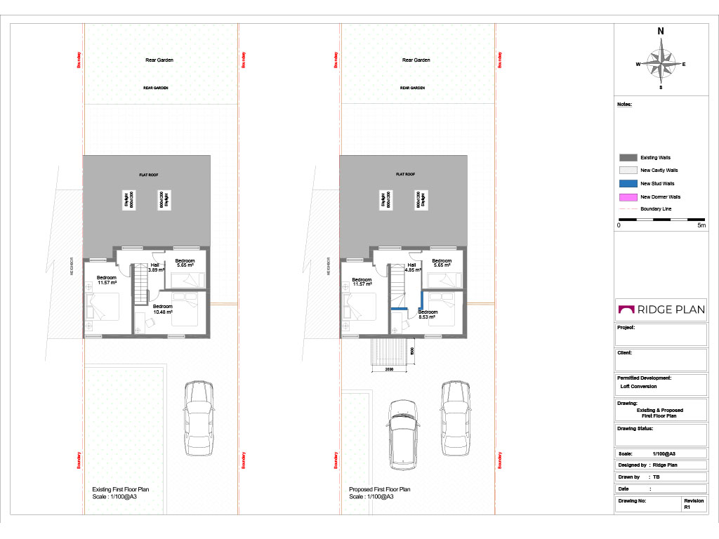
Our drawings support dormer, hip-to-gable, mansard, or rooflight loft conversions for added living space.We optimize layout and structure while ensuring compliance with planning and building regulations.This service is perfect for those looking to enhance their attic into a usable, approved room.

Loft conversion projects, including:

• Site and location plans
• Existing and proposed floor plans
• Existing and proposed elevations
• Space planning and roof design
• Compliance with UK planning and building regulations